Размер шрифта
Цвет фона и шрифта
Изображения
Озвучивание текста
Обычная версия сайта
AQUA DOM
+7 (701) 493 13 84
+7 (701) 493 13 84Астана
+7 (771) 503 77 42Алматы
Заказать звонок
E-mail
director@aquadom.kz
Адрес
г. Астана, просп. Магжана Жумабаева, 15/3
г. Алматы, ул. Жазылбека 20, н.п 214

Режим работы
Пн. – Пт.: с 9:00 до 18:00
Отправить запрос
Компания
  • История
  • Лицензии
  • Партнеры
  • Вопрос-ответ
  • Сервисное обслуживание
  • Приглашение инвесторов
Услуги
  • Банные комплексы
    • Концепция проекта
    • Проектирование
    • Строительство банных комплексов
    • Эскизный проект
  • Аквапарки
    • Концепция аквапарка
    • Проектирование аквапарка
    • Строительство
    • Эскизный проект
  • Фонтаны
    • Дизайн и анимация фонтанов
    • Обслуживание фонтанов
    • Поставка оборудования
    • Проектирование фонтанов
    • Строительство фонтанов
  • Бассейны
    • Обслуживание бассейнов
    • Поставка материалов
    • Поставка оборудования
    • Проектирование бассейнов
    • Строительство бассейнов
  • Пруды и водоемы
    • Обслуживание
    • Поставка материалов и оборудования
    • Проектирование
    • Строительство
  • Русские бани
    • Поставка материалов и оборудования
    • Проектирование и дизайн
    • Строительство русских бань
  • Хамамы
    • Поставка материалов и оборудования
    • Строительство хамамов
  • Сауны
    • Поставка материалов и оборудования
    • Строительство саун
  • Соляные комнаты
    • Соляные градирни
    • Строительство соляных комнат
  • Снежные и ледяные комнаты
    • Строительство снежных и ледяных комнат
  • Крио комнаты, камеры, кабины
    • Поставка и монтаж криокомнат
  • Кровля ПВХ, ТПО
    • Кровельные работы
    • Поставка материалов и комплектующих
    • Проектирование кровель
  • Иммерсивный спа
    • Строительство иммерсивных спа
Кровля
Наши объекты
  • Фонтаны
  • Бассейны
  • Пруды и Водоемы
  • Бани и сауны
  • Иммерсивный СПА
  • Концепты
  • Кровля
  • Снежные и крио комнаты
  • Соляные комнаты
  • Хамамы
Новости
Контакты
AQUA DOM
  • Вопрос-ответ
  • Лицензии
  • ...
    +7 (701) 493 13 84
    +7 (701) 493 13 84Астана
    +7 (771) 503 77 42Алматы
    Заказать звонок
    E-mail
    director@aquadom.kz
    Адрес
    г. Астана, просп. Магжана Жумабаева, 15/3
    г. Алматы, ул. Жазылбека 20, н.п 214

    Режим работы
    Пн. – Пт.: с 9:00 до 18:00
    Заказать звонок
    Компания
    • История
    • Лицензии
    • Партнеры
    • Вопрос-ответ
    • Сервисное обслуживание
    • Приглашение инвесторов
    Услуги
    • Банные комплексы
      Банные комплексы
      • Концепция проекта
      • Проектирование
      • Строительство банных комплексов
      • Эскизный проект
    • Аквапарки
      Аквапарки
      • Концепция аквапарка
      • Проектирование аквапарка
      • Строительство
      • Эскизный проект
    • Фонтаны
      Фонтаны
      • Дизайн и анимация фонтанов
      • Обслуживание фонтанов
      • Поставка оборудования
      • Проектирование фонтанов
      • Строительство фонтанов
    • Бассейны
      Бассейны
      • Обслуживание бассейнов
      • Поставка материалов
      • Поставка оборудования
      • Проектирование бассейнов
      • Строительство бассейнов
    • Пруды и водоемы
      Пруды и водоемы
      • Обслуживание
      • Поставка материалов и оборудования
      • Проектирование
      • Строительство
    • Русские бани
      Русские бани
      • Поставка материалов и оборудования
      • Проектирование и дизайн
      • Строительство русских бань
    • Хамамы
      Хамамы
      • Поставка материалов и оборудования
      • Строительство хамамов
    • Сауны
      Сауны
      • Поставка материалов и оборудования
      • Строительство саун
    • Соляные комнаты
      Соляные комнаты
      • Соляные градирни
      • Строительство соляных комнат
    • Снежные и ледяные комнаты
      Снежные и ледяные комнаты
      • Строительство снежных и ледяных комнат
    • Крио комнаты, камеры, кабины
      Крио комнаты, камеры, кабины
      • Поставка и монтаж криокомнат
    • Кровля ПВХ, ТПО
      Кровля ПВХ, ТПО
      • Кровельные работы
      • Поставка материалов и комплектующих
      • Проектирование кровель
    • Иммерсивный спа
      Иммерсивный спа
      • Строительство иммерсивных спа
    Кровля
    Наши объекты
    • Фонтаны
    • Бассейны
    • Пруды и Водоемы
    • Бани и сауны
    • Иммерсивный СПА
    • Концепты
    • Кровля
    • Снежные и крио комнаты
    • Соляные комнаты
    • Хамамы
    Новости
    Контакты
      Отправить запрос
      AQUA DOM
      Компания
      • История
      • Лицензии
      • Партнеры
      • Вопрос-ответ
      • Сервисное обслуживание
      • Приглашение инвесторов
      Услуги
      • Банные комплексы
        Банные комплексы
        • Концепция проекта
        • Проектирование
        • Строительство банных комплексов
        • Эскизный проект
      • Аквапарки
        Аквапарки
        • Концепция аквапарка
        • Проектирование аквапарка
        • Строительство
        • Эскизный проект
      • Фонтаны
        Фонтаны
        • Дизайн и анимация фонтанов
        • Обслуживание фонтанов
        • Поставка оборудования
        • Проектирование фонтанов
        • Строительство фонтанов
      • Бассейны
        Бассейны
        • Обслуживание бассейнов
        • Поставка материалов
        • Поставка оборудования
        • Проектирование бассейнов
        • Строительство бассейнов
      • Пруды и водоемы
        Пруды и водоемы
        • Обслуживание
        • Поставка материалов и оборудования
        • Проектирование
        • Строительство
      • Русские бани
        Русские бани
        • Поставка материалов и оборудования
        • Проектирование и дизайн
        • Строительство русских бань
      • Хамамы
        Хамамы
        • Поставка материалов и оборудования
        • Строительство хамамов
      • Сауны
        Сауны
        • Поставка материалов и оборудования
        • Строительство саун
      • Соляные комнаты
        Соляные комнаты
        • Соляные градирни
        • Строительство соляных комнат
      • Снежные и ледяные комнаты
        Снежные и ледяные комнаты
        • Строительство снежных и ледяных комнат
      • Крио комнаты, камеры, кабины
        Крио комнаты, камеры, кабины
        • Поставка и монтаж криокомнат
      • Кровля ПВХ, ТПО
        Кровля ПВХ, ТПО
        • Кровельные работы
        • Поставка материалов и комплектующих
        • Проектирование кровель
      • Иммерсивный спа
        Иммерсивный спа
        • Строительство иммерсивных спа
      Кровля
      Наши объекты
      • Фонтаны
      • Бассейны
      • Пруды и Водоемы
      • Бани и сауны
      • Иммерсивный СПА
      • Концепты
      • Кровля
      • Снежные и крио комнаты
      • Соляные комнаты
      • Хамамы
      Новости
      Контакты
        +7 (701) 493 13 84Астана
        +7 (771) 503 77 42Алматы
        Заказать звонок
        E-mail
        director@aquadom.kz
        Адрес
        г. Астана, просп. Магжана Жумабаева, 15/3
        г. Алматы, ул. Жазылбека 20, н.п 214

        Режим работы
        Пн. – Пт.: с 9:00 до 18:00
        Отправить запрос
        AQUA DOM
        Телефоны
        +7 (701) 493 13 84 Астана
        +7 (771) 503 77 42 Алматы
        Заказать звонок
        AQUA DOM
        • Компания
          • Компания
          • История
          • Лицензии
          • Партнеры
          • Вопрос-ответ
          • Сервисное обслуживание
          • Приглашение инвесторов
        • Услуги
          • Услуги
          • Банные комплексы
            • Банные комплексы
            • Концепция проекта
            • Проектирование
            • Строительство банных комплексов
            • Эскизный проект
          • Аквапарки
            • Аквапарки
            • Концепция аквапарка
            • Проектирование аквапарка
            • Строительство
            • Эскизный проект
          • Фонтаны
            • Фонтаны
            • Дизайн и анимация фонтанов
            • Обслуживание фонтанов
            • Поставка оборудования
            • Проектирование фонтанов
            • Строительство фонтанов
          • Бассейны
            • Бассейны
            • Обслуживание бассейнов
            • Поставка материалов
            • Поставка оборудования
            • Проектирование бассейнов
            • Строительство бассейнов
          • Пруды и водоемы
            • Пруды и водоемы
            • Обслуживание
            • Поставка материалов и оборудования
            • Проектирование
            • Строительство
          • Русские бани
            • Русские бани
            • Поставка материалов и оборудования
            • Проектирование и дизайн
            • Строительство русских бань
          • Хамамы
            • Хамамы
            • Поставка материалов и оборудования
            • Строительство хамамов
          • Сауны
            • Сауны
            • Поставка материалов и оборудования
            • Строительство саун
          • Соляные комнаты
            • Соляные комнаты
            • Соляные градирни
            • Строительство соляных комнат
          • Снежные и ледяные комнаты
            • Снежные и ледяные комнаты
            • Строительство снежных и ледяных комнат
          • Крио комнаты, камеры, кабины
            • Крио комнаты, камеры, кабины
            • Поставка и монтаж криокомнат
          • Кровля ПВХ, ТПО
            • Кровля ПВХ, ТПО
            • Кровельные работы
            • Поставка материалов и комплектующих
            • Проектирование кровель
          • Иммерсивный спа
            • Иммерсивный спа
            • Строительство иммерсивных спа
        • Кровля
        • Наши объекты
          • Наши объекты
          • Фонтаны
          • Бассейны
          • Пруды и Водоемы
          • Бани и сауны
          • Иммерсивный СПА
          • Концепты
          • Кровля
          • Снежные и крио комнаты
          • Соляные комнаты
          • Хамамы
        • Новости
        • Контакты
        Отправить запрос
        • +7 (701) 493 13 84 Астана
          • Телефоны
          • +7 (701) 493 13 84 Астана
          • +7 (771) 503 77 42 Алматы
          • Заказать звонок
        • г. Астана, просп. Магжана Жумабаева, 15/3
          г. Алматы, ул. Жазылбека 20, н.п 214

        • director@aquadom.kz
        • Пн. – Пт.: с 9:00 до 18:00

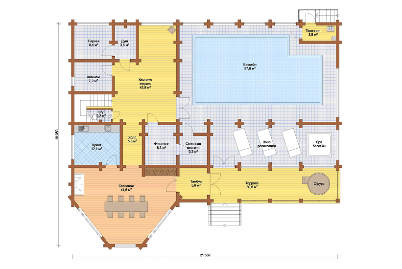
        Эскизный проект банного комплекса

        Главная
        —
        Услуги
        —
        Банные комплексы
        —Эскизный проект банного комплекса
        Эскизный проект
        Эскизный проект банного комплекса — визуализация идеи и чёткая основа для реализации
        Эскизный проект банного комплекса — это важнейший этап между концепцией и техническим проектированием. Именно здесь ваши идеи обретают форму, стиль — очертания, а пространство — функциональную логику.
        Компания «Аква Дом» разрабатывает эскизные проекты бань и спа-зон, учитывая назначение объекта, бюджет, стиль и пожелания заказчика.
        Результат — вы не просто видите, как будет выглядеть будущий банный комплекс, а уже ощущаете его атмосферу.
        Оформите заявку на услугу, мы свяжемся с вами в ближайшее время и ответим на все интересующие вопросы.
        Заказать услугу
        ?

        Что входит в эскизный проект:

        Планировочные решения

        • Оптимальная расстановка всех зон: парная, купель, душевая, зона отдыха, массажная, технические помещения
        • Рациональное зонирование с учётом сценариев посещения и приватности
        • Удобная навигация и логика передвижения клиента по объекту

        Визуализация (2D и 3D)

        • Внутренние и внешние виды
        • Интерьеры с деталями отделки
        • Объёмная подача стилистики
        • Возможность предварительного согласования дизайна

        Согласование архитектурного стиля

        • Детализация выбранной концепции
        • Подбор материалов отделки и световых решений
        • Предложение стильных и технологичных решений (дерево, камень, бетон, мозаика)

        Уточнение размеров и площадей

        • Предварительные размеры всех помещений
        • Расчёт полезных и общих площадей
        • Учёт нормативов и эргономики

        Базовая оценка стоимости

        • Возможность сразу видеть влияние архитектуры на бюджет
        • Подбор конструктивных решений в заданных финансовых рамках

        Что даёт заказчику эскизный проект бани:

        • Визуальное понимание проекта до начала затрат
        • Контроль эстетики, стилистики и комфорта
        • Снижение риска переделок и неточностей
        • Готовая база для проектировщиков и строителей
        • Инструмент для согласования с инвесторами или руководством

        Для кого нужен эскизный проект:

        • Для тех, кто хочет построить частную баню или банный дом с нуля
        • Для коммерческих объектов: spa, wellness, банных клубов, гостиничных комплексов
        • Для застройщиков, архитекторов, подрядчиков, которым нужна готовая визуальная основа

        Хотите увидеть свой банный комплекс до начала строительства и проектирования?

        Оставьте заявку — и мы подготовим для вас профессиональный эскизный проект банного комплекса, в котором каждая деталь будет продумана и согласована.

        Почему «Аква Дом»

        21 год на рынке Надёжный опыт в проектировании и реализации банных решений
        Сильная команда Проектировщики, дизайнеры и визуализаторы — в одном штате
        Инженерная точность Учитываем все строительные и технические нюансы
        Назад к списку

        • Банные комплексы
          • Концепция проекта
          • Проектирование
          • Строительство банных комплексов
          • Эскизный проект
        • Аквапарки
          • Концепция аквапарка
          • Проектирование аквапарка
          • Строительство
          • Эскизный проект
        • Фонтаны
          • Дизайн и анимация фонтанов
          • Обслуживание фонтанов
          • Поставка оборудования
          • Проектирование фонтанов
          • Строительство фонтанов
        • Бассейны
          • Обслуживание бассейнов
          • Поставка материалов
          • Поставка оборудования
          • Проектирование бассейнов
          • Строительство бассейнов
        • Пруды и водоемы
          • Обслуживание
          • Поставка материалов и оборудования
          • Проектирование
          • Строительство
        • Русские бани
          • Поставка материалов и оборудования
          • Проектирование и дизайн
          • Строительство русских бань
        • Хамамы
          • Поставка материалов и оборудования
          • Строительство хамамов
        • Сауны
          • Поставка материалов и оборудования
          • Строительство саун
        • Соляные комнаты
          • Соляные градирни
          • Строительство соляных комнат
        • Снежные и ледяные комнаты
          • Строительство снежных и ледяных комнат
        • Крио комнаты, камеры, кабины
          • Поставка и монтаж криокомнат
        • Кровля ПВХ, ТПО
          • Кровельные работы
          • Поставка материалов и комплектующих
          • Проектирование кровель
        • Иммерсивный спа
          • Строительство иммерсивных спа

        Нужна консультация?

        Наши специалисты ответят на любой интересующий вопрос

        Задать вопрос
        Компания
        История
        Лицензии
        Партнеры
        Вопрос-ответ
        Сервисное обслуживание
        Приглашение инвесторов
        Услуги
        Банные комплексы
        Аквапарки
        Фонтаны
        Бассейны
        Пруды и водоемы
        Русские бани
        Хамамы
        Сауны
        Соляные комнаты
        Снежные и ледяные комнаты
        Крио комнаты, камеры, кабины
        Кровля ПВХ, ТПО
        Иммерсивный спа
        Наши объекты
        Фонтаны
        Бассейны
        Пруды и Водоемы
        Бани и сауны
        Иммерсивный СПА
        Концепты
        Кровля
        Снежные и крио комнаты
        Соляные комнаты
        Хамамы
        Кровля
        Новости
        Контакты
        +7 (701) 493 13 84
        +7 (701) 493 13 84Астана
        +7 (771) 503 77 42Алматы
        Заказать звонок
        E-mail
        director@aquadom.kz
        Адрес
        г. Астана, просп. Магжана Жумабаева, 15/3
        г. Алматы, ул. Жазылбека 20, н.п 214

        Режим работы
        Пн. – Пт.: с 9:00 до 18:00
        director@aquadom.kz
        г. Астана, просп. Магжана Жумабаева, 15/3
        г. Алматы, ул. Жазылбека 20, н.п 214

        © 2026 «AQUA DOM»
        Политика конфиденциальности
        Разработано в
        Главная Поиск Контакты Услуги Партнеры Компания Проекты Лицензии Блог